Description
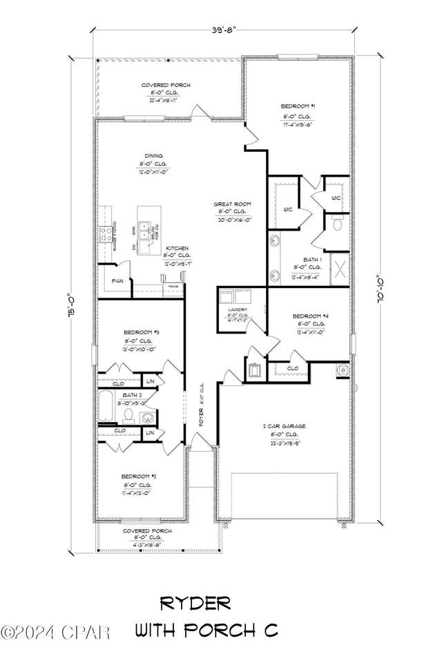
New home under construction in our Morningside community. Introducing the Ryder floor plan located at 7419 Morningside Drive. This is a 4-bedroom, 2-bathroom home with 2031 Square feet and a two-car garage. As you approach this home you will see a fully sodded lawn with landscaped flowerbeds along the front walkway. This home is constructed with vinyl siding and trim and dimensional shingles with a 30-year manufacturer's warranty, As you enter this home through the covered front patio you will find 8' ceilings, beautiful EVP flooring, and riverside style doors with brushed nickel hardware. This floor plan is open and spacious with a kitchen that features a center island, beautiful white cabinetry and a pantry and overlooks the large great room as well as dining area. The primary bedroom is situated at the back of the home and has a large bath with shower as well as two closets. The additional bedrooms are just off the front entry with a laundry room. Additional interior features include granite countertops, stainless steel appliances in the kitchen including a smooth top range, microwave and dishwasher. A smart home package is included that features a centrally located touch panel that can be integrated to control your thermostat, lighting and even secure your home. Morningside is a great choice for military personnel working at Tyndall Air Force base as it is only about a 15-minute drive away. If you are looking for outdoor recreation, there are public boat launches approximately 10 minutes away and H.G Harders Recreation Complex is less than 5 miles away. Morningside is located off Highway 231 making it a short drive to shopping, food, schools, and the beautiful beaches of Panama City Beach.
-
4BEDS
-
0.17ACRES
-
2BATHS
-
01/2 BATHS
-
2,031SQFT
-
$0$/SQFT
School Information
Description
New home under construction in our Morningside community. Introducing the Ryder floor plan located at 7419 Morningside Drive. This is a 4-bedroom, 2-bathroom home with 2031 Square feet and a two-car garage. As you approach this home you will see a fully sodded lawn with landscaped flowerbeds along the front walkway. This home is constructed with vinyl siding and trim and dimensional shingles with a 30-year manufacturer's warranty, As you enter this home through the covered front patio you will find 8' ceilings, beautiful EVP flooring, and riverside style doors with brushed nickel hardware. This floor plan is open and spacious with a kitchen that features a center island, beautiful white cabinetry and a pantry and overlooks the large great room as well as dining area. The primary bedroom is situated at the back of the home and has a large bath with shower as well as two closets. The additional bedrooms are just off the front entry with a laundry room. Additional interior features include granite countertops, stainless steel appliances in the kitchen including a smooth top range, microwave and dishwasher. A smart home package is included that features a centrally located touch panel that can be integrated to control your thermostat, lighting and even secure your home. Morningside is a great choice for military personnel working at Tyndall Air Force base as it is only about a 15-minute drive away. If you are looking for outdoor recreation, there are public boat launches approximately 10 minutes away and H.G Harders Recreation Complex is less than 5 miles away. Morningside is located off Highway 231 making it a short drive to shopping, food, schools, and the beautiful beaches of Panama City Beach.
© 2026 Central Panhandle Association of Realtors MLS. All rights reserved. IDX information is provided exclusively for consumers' personal, non-commercial use and may not be used for any purpose other than to identify prospective properties consumers may be interested in purchasing. Information is deemed reliable but is not guaranteed accurate by the MLS or Blue Swell Realty. Data last updated: 2026-03-09T23:04:03.11.

Listing provided courtesy of DR Horton Realty of Emerald Coast, LLC: 850-660-1701. Listing information © 2026 Central Panhandle Association of Realtors MLS.