Description
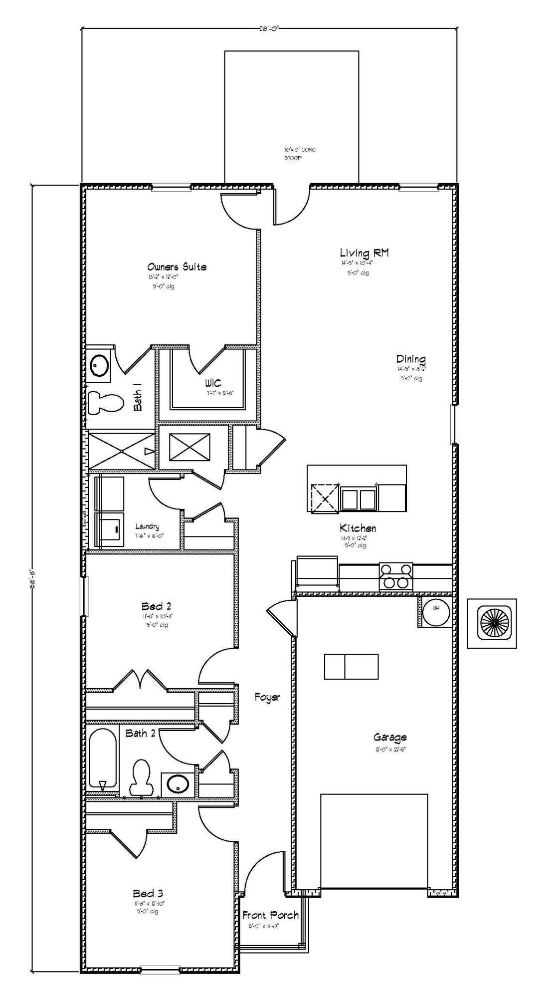
Welcome to Blackwater Reserve community! Brand NEW community featuring a beautiful community pool, Lazy River and Pickle Ball. The 'Delilah' model is a relaxed cottage style open concept floorplan, 3 bedrooms, 2 bathrooms, 1-car garage, and a 'Smart Home Connect 'System with a variety of convenient Smart Home devices you will love. NICE open living room with the dining area open to the kitchen and living room with lots of windows for natural lighting. The well-designed open kitchen includes stainless steel appliances, a smooth-top range, built-in microwave, gorgeous quartz countertops, quiet dishwasher, island bar, eye-catching wood-look flooring, and plush carpet in the bedrooms. Fabric Hurricane door and window protection is also included.
-
3BEDS
-
0.15ACRES
-
2BATHS
-
01/2 BATHS
-
1,354SQFT
-
$208$/SQFT
School Information
Description
Welcome to Blackwater Reserve community! Brand NEW community featuring a beautiful community pool, Lazy River and Pickle Ball. The 'Delilah' model is a relaxed cottage style open concept floorplan, 3 bedrooms, 2 bathrooms, 1-car garage, and a 'Smart Home Connect 'System with a variety of convenient Smart Home devices you will love. NICE open living room with the dining area open to the kitchen and living room with lots of windows for natural lighting. The well-designed open kitchen includes stainless steel appliances, a smooth-top range, built-in microwave, gorgeous quartz countertops, quiet dishwasher, island bar, eye-catching wood-look flooring, and plush carpet in the bedrooms. Fabric Hurricane door and window protection is also included.
© 2026 Emerald Coast Association of Realtors MLS. All rights reserved. IDX information is provided exclusively for consumers' personal, non-commercial use and may not be used for any purpose other than to identify prospective properties consumers may be interested in purchasing. Information is deemed reliable but is not guaranteed accurate by the MLS or Blue Swell Realty. Vendor Member number: 28178. Data last updated: 2026-03-09T00:00:29.153.
Vendor Member #28178.
